Продаж дома, Одесса, Черноморская (Бурлачья Балка)

<
Продаж  дома, Одесса, Черноморская (Бурлачья Балка)
>
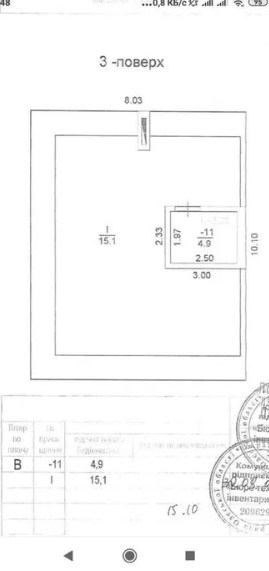
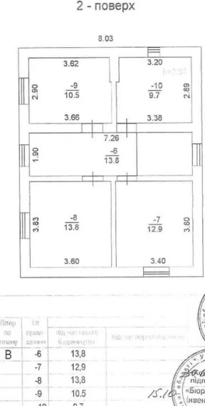
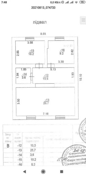
8247 Продам новый двух этажный дом в Бурлачьей Балке. Общая площадь 200 кв.м. 5 комнат и большое подвальное помещение. На каждом этаже свой сан.узел. Новый дом на участке 4 сотки. Чистовая отделка. Отопление и все коммуникации: газ, вода, свет с приборами учета. Напротив Совиньона. Лиман, море в шаговой доступности.


Номер пропозиція: 446655
Всього переглядів: 146

Дата : 30.11.1999
код: 8247
1 353 038 грн
37 000 USD
Светлана Алексеевна Гетьман
(XXX) XXX-XX-XX показати
Звязатися з продавцем
Подивитись на карті
Додати в обране
<

Дізнатись більше, запитайте у продавця

Ваше запитання

Ваш e-mail


Ваш номер телефону (не обов'язково)

Надіслати повідомлення
Оголошення у форматі даних у QR-коді

Будь ласка, допоможіть нам перевірити цю пропозицію


Пропозиція застаріла

Адреса вказана невірно

Інші порушення

Подібні пропозиції

Продаж 1-комнатной  Одесса, Испанский пер.
1 499 313 грн (27 260 грн/м2)
41 000 USD (745 usd/м2)
VIP
Продаж 2-комнатной  Київ, Тычины Павла просп 22а
2 742 645 грн (60 146 грн/м2)
75 000 USD (1 630 usd/м2)
VIP
Оренда 2-x этажного  таунхаусаЯремче, с. Микуличин
200 грн за сутки
VIP
Оренда 2-x этажного таунхауса
Яремче, с. Микуличин

Частный сектор в Микуличине, Карпаты. частная усадьба “Микулин хуторец” представляет собою комплекс из пяти двухэтажных деревянных коттеджей и находится в в уютном карпатском уголке п. Микуличин, Буковель. Усадьба “Микулин хуторец” расположена над рекой и окружена лесом. Большая огороженная территория красиво и удобно обустроена для комфортного отдыха. Размещение: частная усадьба “Микулин хуторец” предлагает к услугам гостей пять двухэтажных коттеджа с номерами разной категории. Коттедж № 1 располагает 2 двухкомнатными номерами класса"Люкс" (и 2 однокомнатными номерами класса "Полулюкс". В каждом номере - двуспальная кровать, раскладной диван, шкаф для одежды, столик, кресла, тумбочки, телевизор со спутниковым ТВ, холодильник, набор посуды, электрочайник, санузел (душевая кабина, умывальник, туалет ) в номерах "Полулюкс" нет холодильника. В доме есть погребок со столиками и барной стойкой. Коттедж № 2 предлагает двухкомнатный номер класса "Люкс" с 2 балконами и 2 однокомнатные "Полулюкс" с общими балконом и санузлом (душ, умывальник, туалет). В каждом номере - двуспальная кровать, раскладной диван, шкаф для одежды, столик, кресла, тумбочки, телевизор со спутниковым ТВ, холодильник, набор посуды, электрочайник, санузел (душевая кабина, умывальник, туалет ) в номерах "Полулюкс" нет холодильника. Коттедж № 3 предлагает на первом этаже "Апартаменты": кухня, санузел (душевая кабина, умывальник, туалет), 3 комнаты, в каждой из которых - двуспальная кровать, раскладной диван, шкаф для одежды, столик, кресла, тумбочки, телевизор со спутниковым ТВ , на II этаже: однокомнатный номер класса "Полулюкс" с 2 балконами (двуспальная кровать, раскладной диван, шкаф для одежды, столик, кресла, тумбочки, телевизор со спутниковым ТВ, набор посуды, электрочайник, санузел (душевая кабина, умывальник, туалет)) и 3 отдельные номера с общим санузлом (душ, умывальник, туалет) - в каждом номере двуспальная кровать, шкаф для одежды, столик, кресла, тумбочки, телевизор со спутниковым ТВ, набор посуды, электрочайник; Коттедж № 4 располагает двухкомнатным номером класса "Люкс" и однокомнатным номером класса "Полулюкс". В каждом номере - двуспальная кровать, раскладной диван, шкаф для одежды, столик, кресла, тумбочки, телевизор со спутниковым ТВ, холодильник, набор посуды, электрочайник, санузел (душевая кабина, умывальник, туалет), комната для переговоров (раскладной диван, кресла, столик); Коттедж № 5 (Финский домик) на I этаже - кухня (холодильник, микроволновка, мойка, набор посуды, электрочайник), санузел (душевая кабина, умывальник, туалет), диван, раскладное кресло, шкаф для одежды, столик, кресла, телевизор с спутниковым ТВ, на II этаже - двуспальная кровать, балкон. Водоснабжение: холодная и горячая вода — постоянно. Питание: - в кафе, которое рассчитано на 20-25 человек с караоке и террасой (столики, стулья, камин) с видом на речку; Инфраструктура: - автостоянка - бильярд - сауна с бассейном - открытый бассейн рядом с сауной - кафе - беседка с мангалом - колыба. Стандарт №10,12,14 (один санузел на 3 номера)- с 16.01.2013 по 15.12.2013 - 200 грн/за номер; Стандарт №6,7 (один санузел на 2 номера)- с 16.01.2013 по 15.12.2013 - 250 грн/за номер; Полулюкс (Коттедж №1,2,3,4) - с 16.01.2013 по 15.12.2013 - 350 грн/за номер. урочище Горбы +38 (096) 792-06-26 +38 (098) 583-33-15
- м2
Оренда многокомнатной  Паляница / Буковель, с.Паляница, ур.Стаище, 208
150 грн за сутки
VIP
Оренда многокомнатной
Паляница / Буковель, с.Паляница, ур.Стаище, 208

Жилье в Карпатах. Деревянный коттедж \"Гуцулка\" находится в селе Поляница, в 1,5 км от комплекса Буковель и горнолыжных трасс. Садыба Гуцулка находится на склоне горы в 100 метрах от центральной улицы Поляницы, удобный подъезд к дому в любую погоду. К услугам отдыхающих предлагается 6 по-домашнему уютных номеров, из окон которых открываются живописные виды на Карпатские горы. Также к Вашим услугам кафе-столовая, где можно полакомиться блюдами домашней кухни, в столовой есть большой LCD телевизор. В распоряжении отдыхающих кухня, стиральная машина, мангал, автостоянка. Здесь созданы все условия для того, чтобы Ваш отдых был насыщенным и интересным. Двухместный эконом - 150 грн. Трехместный - 180 грн. Четырехместный - 250 грн. ресторан; автостоянка; интернет Wi-Fi; +38 (097) 409-61-10
- м2
Оренда «РОМАНТИК СПА ОТЕЛЬ»Яремче, ул. Свободы 363/32
690 грн за сутки
VIP
Оренда «РОМАНТИК СПА ОТЕЛЬ»
Яремче, ул. Свободы 363/32

ОТДЫХ ЯРЕМЧЕ КАРПАТЫ БУКОВЕЛЬ ГОСТИНИЦА. Romantik Spa Hotel - Enjoy Romantic holidays. Romantik Spa Hotel (спа-отель РОМАНТИК) расположен в живописном уголке Украины в окружении горных пейзажей Карпатских гор и рек – Ивано-Франковская область, г. Яремче (Яремча). Romantik Spa Hotel (спа-отель РОМАНТИК) представляет собой 6-ти этажный комплекс (1-й этаж: ресторан, рецепция, лобби-бар, конференц-зал на 200 мест, SPA-центр, салон красоты, галерея бутиков; 2-й этаж: конференц-зал на 50 мест; 2 - 6-й этажи – номерной фонд). Номерной фонд: 105 номеров. Повара ресторана способны угодить любителям разнообразной иностранной кухни и гарантируют гостям незабываемые кулинарные удовольствия. Круглосуточные лобби-бар и паб-бар удивят эксклюзивными пьянящими коктейлями, элитными напитками и свежесваренным пивом «Панське». SPA-центр (4 бассейна (включая купель в банном комплексе), комплекс бань и саун, ледяная комната, соляной грот, аромагрот, души, массажный кабинет, комната релакса, фитобар, солярий), салон красоты, фитнесс-центр, ресторан, лобби-бар (круглосуточно), паб&бар (круглосуточно), детская игровая комната, 2 конференц-зала на 50 мест и 200 мест, интернет Wi-Fi (в каждом номере, ресторане, лобби). Услуги детям: детская игровая комната, бассейн с горкой помогут забыть о домашних хлопотах и окунуться в сказочный мир развлечений, услуги по уходу за детьми (няня, воспитатель в детской комнате). ЦЕНЫ: (можно с двухразовым питанием) ПАКЕТ №1 Двухместный улучшенный "СТАНДАРТ" (Проживание без питания) = 690 грн. В стоимость проживания входит: - Зона спа-бассейнов (детский бассейн с горкой слоником, большой крытый бассейн с 4 видами СПА-гидро массажа и открытый бассейн с 2 видами СПА-гидро массажа и пляжем под открытым небом с шезлонгами) - Зона спа-саун (финская сауна, пивная паровая, аромагрот, ледовая комната, ледовая купель, эргономические лежаки) - В каждом номере есть возможность для приготовления горячих напитков - Бесплатно в мини-баре номера есть минеральная газированная и негазированная вода - Автомобильный паркинг под надзором ПАКЕТ Двухкомнатный "Люкс" = 1190 грн. ТРЕХКОМНАТНЫЕ АПАРТАМЕНТЫ "ВСЕ ВКЛЮЧЕНО" = 4900 грн. (В стоимость проживания входит: завтрак, обед и ужин, алкогольные и безалкогольние напитки). Рецепция / Бронирование: тел. +38 (0342) 59-52-12 тел. +38 (067) 341-08-10 тел. +38 (095) 452-73-53
Продаж 3-комнатной  Харьков, пр. Московский 131в
1 079 700 грн (8 850 грн/м2)
29 524 USD (242 usd/м2)
VIP
Продаж 1-комнатной  Алчевск, Алчевск
171 872 грн (3 997 грн/м2)
4 700 USD (109 usd/м2)
VIP
Продаж 3-комнатной  Алчевск, ул.Ленина
109 706 грн (2 612 грн/м2)
3 000 USD (71 usd/м2)
VIP
Продаж 3-комнатной  Затока, М-Н Радужный
1 828 430 грн (25 047 грн/м2)
50 000 USD (685 usd/м2)
VIP
Продаж 3-комнатной
Затока, М-Н Радужный

Одесская обл., Белгород-Днестровский р-н, пгт. Затока, М-Н Радужный Продаётся 3-комнатная квартира от хозяина в доме на морском побережье (в центре курорта Затока). Не угловая, уютная, ухоженная, светлая, тихая, потолки 2,5 м., всегда свежий чистый воздух. 3 комнаты – зал, спальня, детская. Окна и лоджии – на обе стороны. 3 лоджии, просторный закрытый тамбур 5 кв.м. на 2 квартиры. Все коммуникации в порядке, без долгов и всяких кредитов. В квартире можно объединить кухню с первой лоджией (сделать арку, не трогая капитальных стен, увеличив площадь кухни с 8 до 13 кв.м.). Таким же образом, объединив детскую комнату со второй лоджией, можно увеличить площадь комнаты с 10 до 13 кв.м. Также, можно лоджию-сушилку (2,5х2,5 м), имеющую отдельный вход из коридора возле кухни, сделать второй детской или мини-мастерской (все 3 стены сушилки - капитальные с хорошей звукоизоляцией). Двор - очень спокойный даже в разгар курортного сезона. Во дворе - большая детская площадка и автопарковка, В паре кварталов – детсад и школа. До моря пешком 500 метров, до лимана - 300, до центрального рынка Затоки -250. Рядом ж/д станция «Бугаз», автобусная станция, автотрасса на Одессу. В общем, всё-всё в нескольких минутах ходьбы. Возможен обмен: интересны дом или квартира в Белгороде-Днестровском с моей или Вашей доплатой. Разумный торг. 096 583-83-63 Анжела
73 м2
X

Вгору